Van oud, leegstaand slachthuis, naar woning in Stedum 
Onderzoek modellen
Hoogte onderzoek
Hoogte onderzoek
Plattegronden
Basisplattegrond
Basisplattegrond
Aanbouw beganegrond
Aanbouw beganegrond
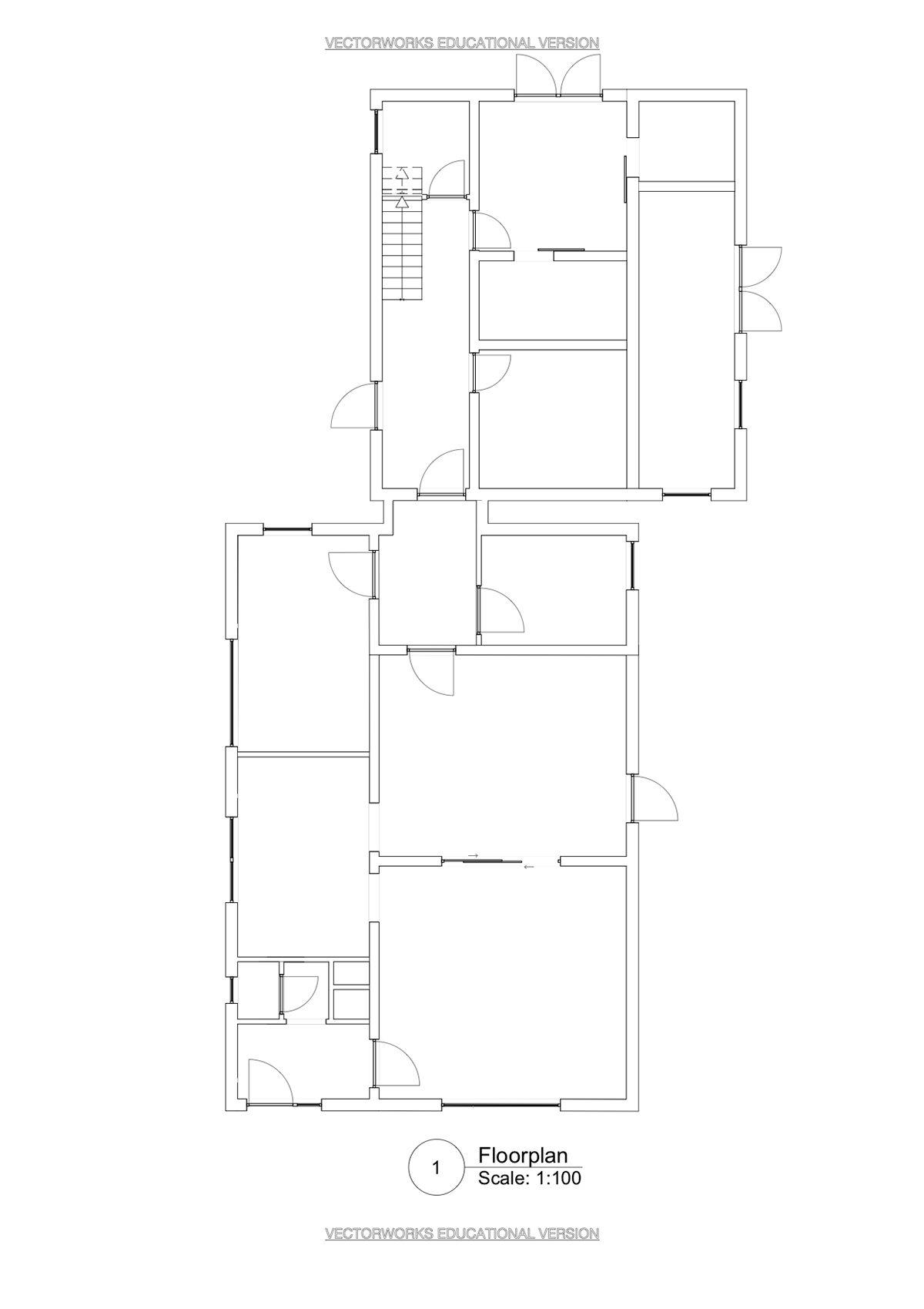
Beganegrond
Beganegrond
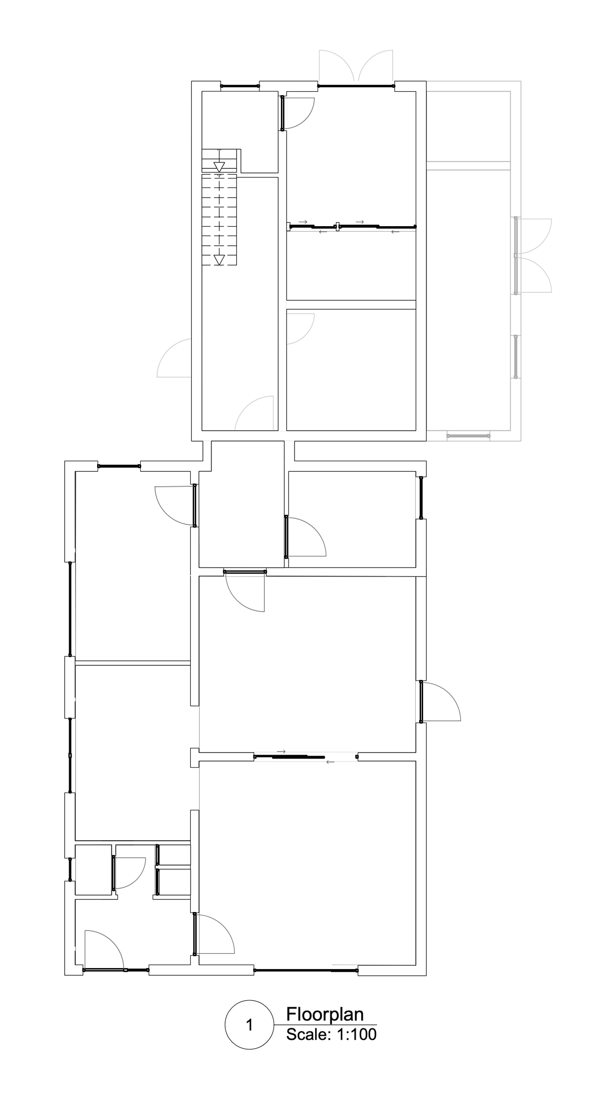
Beganegrond + aanbouw
Beganegrond + aanbouw
Interieur beganegrond
Interieur beganegrond
Interieur begane grond + 1e verdieping aanbouw
Interieur begane grond + 1e verdieping aanbouw
Doorsnede
Doorsnede
Renderingen

You may also like

Back to Top